Mercedes Sprinter 170 Campervan Conversion DIY Kit
Mercedes Sprinter 170 Campervan Conversion DIY Kit
Couldn't load pickup availability
About This Item:
The TNTvans Mercedes Sprinter 170 Campervan Conversion Kit is an easy DIY van bed, van kitchen, and storage solution. With the most efficient access to your gear, this camper van conversion kit is the lightest upfit for your van. Made with proprietary high quality materials, the overall system is adjustable and conforms to the width of your van to make an RV van conversion project super simple.
A bed, kitchen area, and storage are your van's first needs to get out and go camping this weekend. Everything else can be easily added later.
So you can still use your van to haul large items, I designed this van interior kit with a removeable bed frame that leaves a large aisle space.
All units are modular and bolt together. Bed sizes, shelving, benches, and kitchen units can all be swapped in and out of each kit. Contact me if you need to customize your setup.
Doors, Drawers, & Side Panels:
You can easily install our modular Doors, Drawers, & Side Panels to any shelf space. They are available in the accessories menu.

This Kit Includes:
- (1) Van Bed 71" & Shelving Kit - 3 Platforms
The Bed Platforms sit on top of large wheel well storage units and are removable with 4 bed heights to choose from. This Bed Size is 6' long and spans across the width of your van. On the ends of the the platform are HDEVA Foam spacers to create a level sleeping area across your van. Read more: - (2) Van Bench
In addition to a nice place to sit down and put on your shoes, this 2' wide van bench makes a great place to store heavy batteries or tools. Read more: - (1) Ice Chest Slide & Countertop
The locking sliding tray is designed around the ICECO 45L but can accommodate many brands of ice chests. Complete with ample convenient countertop space and storage, this van ice chest slide unit is ideal for camper van RV conversions to create a cozy place to prep food, drinks, or work on your laptop. Read more: - (1) Van Sink System
This wireless Van Sink Kit is an easy to install fully self-contained system. It comes complete with a sink, hoses, fittings, manual water pump, and two water tanks. The sink faucet folds down with a nice lid that creates additional van countertop space when you are not using your sink. Read more:
Modular:
Each level of shelving can be stacked in any order. The base section is 18" tall and each bin shelf is 11" tall. If you decide later you need more shelving and want to raise your bed height, you can purchase Stack-On-Shelving.

Accessories: See our Accessory Menu for everything from D-Rings to Lighting.
Recommended Products: From clear bins to insulation, here is a list of compatible Recommended Products that I have used in my van.
Mattress Suggestions: Therm-a-Rest, Roll Up Mat, and cut any Memory Foam to size.
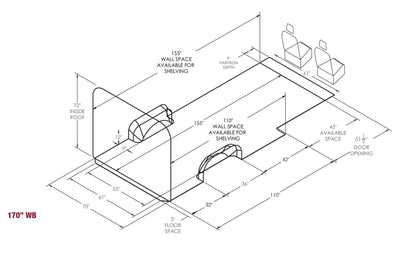
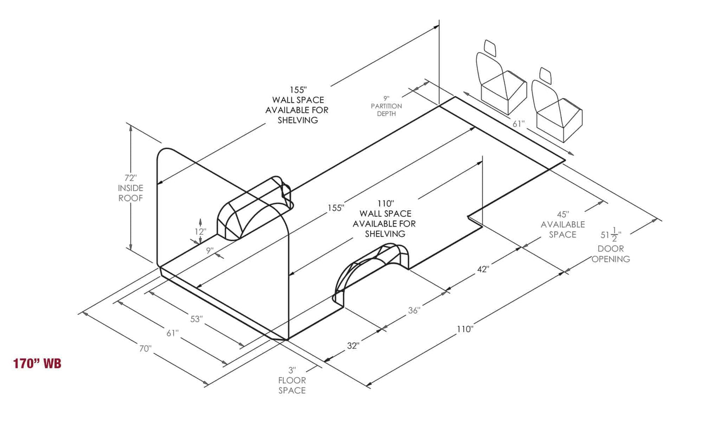
Dimensions & Weight:
Set Dimensions (units along the driver's wall): 146"
Set Dimensions (units along the pass wall): 95"
Bed Height 19" - 62 lbs. Clearance is 17"
Bed Height 30" - 70 lbs. Clearance is 28"
Bed Height 40" - 78 lbs. Clearance is 38"
Bed Height 51" - 86 lbs. Clearance is 49"
Available Base Storage Height: 17.5"
Available Bin Shelf Storage Height: 10.5"
Ice Chest Slide Storage Shelf Height: 6.5"
Assembly and Installation Time:
Assembly Time: 9 Hours
Van Install Time: 2.5 Hours
*Does not include accessory items shown in the pictures: trim, bins, lighting, bedding, stove, ICECO 12v fridge, and other misc. items.
Any Questions?
Any Questions?
We would love answer your questions. Please use the "Contact Us" page to email us and we will get back to you shortly. For information about how to mount items inside your van, watch this video.
Assembly and Van Installation
Assembly and Van Installation
Each TNTvans unit comes with easy to follow step by step assembly instructions. Once the units are assembled, they need to be installed inside the van. Every customer has my personal cell phone. You have my full support during the installation of your van. The buyer is responsible on how they choose to install any TNTvans units into their vehicle. Legal Disclaimer:
TNTvans General Information
TNTvans General Information
TNTvans is a modern efficient design inspired by clean lines, functionality, and modular materials.
TNTvans units are engineered with the smallest but strongest materials in order to not waist limited van space with thick material.
TNTvans shelving units are designed to store large quantities of gear but still leave space in the middle of your van for hauling large items like kayaks, dog crates, and mountain bikes.
All TNTvans products are made in St. George, UT. The Camper Van Conversion Kit, Van Bed Kit, and Van Kitchen Sink System are DIY modular kits designed to assemble with ease.
TNTvans interior solutions fit inside all vans: Mercedes Sprinter Van, Ford Transit, Ram ProMaster, Chevy Express, GMC Savana, Nissan NV, Ford Econoline, Dodge Ram Van
Material Information
Material Information
- Our proprietary 6063 aluminum framework is engineered to be strong and lightweight and perfect for van interior units.
- The USA made cabinet grade Baltic Birch plywood features a clear, thick semi-gloss epoxy acrylate finish and a four coat ultra violet coating for extra durability. SEFA 8.0 certified
- Cushions are made in the USA with Sunbrella water resistant fabric.
- Light units are uniquely manufactured to TNTvans specifications.
Local Installation
Local Installation
If you do not want to install your TNTvans kit, for your convenience and peace of mind, we will install your TNTvans kit here in St. George, UT. Simply add Local Installation to your shopping when checking out. We also offer a VIP "In Your Driveway" installation service. Inquire for scheduling dates.
Shipping & Returns
Shipping & Returns
All products are designed to be flat packed in a box and shipped by UPS. Free Shipping to the contiguous United States!
Before canceling or returning an order, read the TNTvans return policies.




















TNTvans is not just van furniture, it is a SYSTEM.
-
Quick Installation and Removal
VideoThanks to our high quality Proprietary Connection System, you can quickly assemble, install, and remove any TNTvans unit.
-
Engineered to Go Off-Road
VideoA van body will twist over bumps loosening wooden joints with screws. TNTvans’ framework is all metal with bolts that can’t come loose.
-
Lightest Interior
BlogAn average TNTvans system is under 200 lbs. and with lightweight walls from Legend, your van's suspension will not need overload springs.
-
Proprietary Modular Attachment
Stack_On ShelvingAll TNTvans modular products are designed to bolt together. Stack-On Shelves can turn benches into shelving as well as change the shelving and bed height.
-
Quick Visible Storage
Clear BinsFind and access your gear immediately. This same method is utilized by the work van industry everyday to be efficient on the job site.
-
Attachment Points
Tie Down PointsWith T-Slots forged into the metal framework, you can strap your gear down to any point.
-
Water Tank
BenchTNTvans Wheel Well Bench & Shelving units can clear many brands of Wheel Well Water tanks.
-
DIY Friendly
VideoTNTvans ships by UPS in small, easy to lift boxes. Very few tools are needed and I am always there to help my customers for support.
TNTvans
Frequently Asked Questions
How does TNTvans mount inside your van?
To get familiar with attachments points for vans, here is a helpful video.
The TNTvans product is engineered with many mounting locations to give the user the needed flexibility to work with and around the their van floors and walls. Each unit comes with all the hardware the customer needs to mount the units into the van. The install kit comes with your choice of riv nuts, or wood inserts. These are anchors that will create a place to insert a bolt. Plus nuts are for the metal floor in your van. Wood inserts are for a wood floor. Once these anchors are installed, the TNTvans units will bolt into place in just a few minutes.
If desired, the customer may also run a bolt through the supplied hardware kit and floor instead of using an anchor. Our accessories menu has install kits if you want more or if want to change your installation style later down the road.
Can I use L-Track to mount my van's interior?
Yes! I designed the outer frame of each unit with T-track to make it easy for the user to mount their interior wherever they want. If you want to use L-track, Unistrut, or T-track, you can. Once you place your units inside the van you will see where you need your mounting track system to cross your interior unit. Then add your bracket that fits and attach it anywhere to the TNTvans unit.
Can I install my van conversion interior before I install the van inuslation and walls?
Yes! TNTvans camper van conversion kits are products that bolt to the floor. Therefore, you can easily install your units now and then come back later to install all of the insulations, windows and van wall liners.
How does the TNTvans interior remove?
Most customers install anchors into their floors. Each unit can be unbolted from these anchors in just a few minutes.
Is installation available?
Yes! We have an authorized TNTvans dealer right here in St. George, Utah. I also offer a Premium "At Your Home" Remote Installation Service. You can purchase these services on the Installation Web Page. Inquire for scheduling.
Do I need professional help to install TNTvans into my van?
No. Every piece comes with step by step instructions with large colorful pictures. And if there is any question about the assembly or install, I am available by email, phone, and facetime to help.
How do I receive my van conversion kit?
Every product I make packs down into a reasonable sized box and will be delivered by UPS. There will be no heavy palleted crates sent to you.
What is the weight capacity of the bed system?
The Bed System was designed to hold multiple adults. The system was originally tested with a family of 4. We then put 600 lbs. of dead weight in the center of two Bed Bridges just to show off how strong it is.
How long does it take to assemble my kit?
Most units assemble in just under an hour but the Sink System is the most complicated and could take up to 1.5 hours.
What tools do I need?
For assembly: 2mm hex key, 3 mm hex key, 8mm socket
For van install: 6mm hex key, 3/8" drill bit, drill
What makes TNTvans units and system so strong and stiff?
AllTNTvans units are framed with thick aluminum material and redundant bracing. There are no screws or wood used in any structural joints. All units are are engineered to be bolted to each other to add extra rigidity to the entire interior system.
Can I change the placement of the units in my van if I change my mind later?
Yes! You can easily install more anchors anywhere else in your van and bolt down aTNTvans product. If you want to change your anchors types, you can do that as well. I can mail you additional floor installation kits anytime.
What if I sell my van, can I take the TNTvans interior out and put it in another van?
Yes! Everything can un-bolted quickly and re-installed in another van that same day.
How long does it take to install the kit into my van?
It takes about 2 hours to install the anchors for an entire van conversion kit. Once the anchors are installed, you can bolt in your entire kit in less than an hour.
Do you make cushions?
I use CustomCushions.com to order all my cushions. They are USA made and a great company to work with. You can order a cushion through my website or just go straight to them and design your own cushion.
Where is your demo van?
I have a demo van available to see anytime in St. George, Utah.
Can I buy individual pieces from each kit?
Yes. Every piece from a camper conversion kit can be bought individually from the products menu.
How heavy are the interior pieces?
Most units are between 15 and 40 lbs. with the heaviest being the 51" tall Super Shelving. Most camping conversion kits are under 200 lbs.
TNTvans Accessories
-
LED Lighting for Van Shelving or Storage Area | Campervan DIY Conversion
Regular price $149.00 USDRegular priceUnit price per -
Side MOLLE Panel for Shelving | Campervan DIY Conversion
Regular price $19.99 USDRegular priceUnit price per -
Drawer for TNTvans for 2 & 4 Foot Shelving | Campervan DIY Conversion
Regular price $199.00 USDRegular priceUnit price per -
Cabinet Door for TNTvans 1 Foot Wide Shelving | Campervan DIY Conversion
Regular price $49.00 USDRegular priceUnit price per